г Вологда, ул Ленинградская, д 30
Пн-пт с 09:00 до 21:00, Сб-вс с 10:00 до 18:00

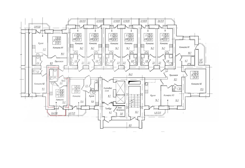
Продажа Студия, 19.8 м², 10/14 эт. ID: J1575

Вологда, 3 Микрорайон Южный, улица Ломоносова, д.4, к.6

Комнаты Студия
Площадь 19.8 м²
Жилая 14 м²
Кухня 5 м²
Этаж 10 из 14
Сдача 2026 г.
1 700 000
85 858 /м²
Рассчитать ипотеку
Смирнов Павел

Смирнов Павел
Специалист по недвижимости

Показать телефон

p.v.smirnov.domplus@yandex.ru
QR
Ссылка на объект

Описание

Продам Квартиру-студию в строящемся кирпичном доме.
Квартира расположена в секции 6, на 10 этаже.
Площадь квартиры- 19,8 кв/м.
Квартира в капитальных стенах из кирпича с толщиной внутренних стен от 54 до 66 см
В подъезде 2 лифта грузовой и пассажирский
Окна выходят во двор на парковку и детскую площадку
После сдачи дома в квартире будет следующая отделка:
- электротехнические работы с использованием кабеля с медными жилами с установкой розеток и выключателей;
-штукатурные работы, устройство цементной стяжки полов, затирка швов на потолочных плитах - все квартиры сдаются с улучшенной отделкой ровные стены и потолок, стяжка пола;
-монтаж систем водоснабжения и канализации с установкой сантехнического оборудования;
-монтаж системы теплоснабжения с установкой радиаторов отопления;
-установка пластиковых окон с двойным стеклопакетом и входной двери;
-установка счетчиков учета горячей и холодной воды;
-установка счетчиков учета электроэнергии;
-покраска труб, радиаторов.
- Оконный блок пластиковый, лоджия остеклена.

Сдача дома по документам 4 квартал 2026 года
Подробнее

Характеристики

  • Тип недвижимости Квартиры
  • Населенный пункт Вологда
  • Микрорайон 3 Микрорайон Южный
  • Адрес улица Ломоносова, д.4, к.6
  • Количество комнат Студия
  • Год постройки дома 2026 г.
  • Общая площадь 19.8 м²
  • Жилая площадь 14 м²
  • Площадь кухни 5 м²
  • Этаж 10
  • Этажей в доме 14
  • Тип санузла Совмещенный
  • Тип балкона лоджия
  • Ремонт черновая отделка
  • Состояние объекта отличное
  • Наличие телефона нет
  • Наличие интернета нет
  • Наличие мебели нет
  • Мусоропровод нет
  • Вид из окон во двор
  • Корпус дома 6
  • Высота потолков в метрах 2.55 м.
  • Тип дома кирпичный
  • лифт 2

Задать вопрос



Вас также может заинтересовать:

2
Студия, 19.8 м², 7/14 эт.
Вологда, улица Ломоносова, д.4, к.6
5 микрорайон, 5 микрорайон
1 699 000
  • Общая площадь:19.8 м²
  • Жилая площадь:13.2 м²
  • Площадь кухни:3.2 м²
  • Этаж:7
3
Студия, 19.8 м², 11/16 эт.
Вологда, улица Ломоносова, д.4
5 микрорайон, 5 микрорайон
1 750 000
  • Общая площадь:19.8 м²
  • Жилая площадь:13.2 м²
  • Площадь кухни:4 м²
  • Этаж:11
6
Студия, 20.1 м², 5/16 эт.
Вологда, улица Ломоносова, д.4
3 Микрорайон Южный
1 720 000
  • Общая площадь:20.1 м²
  • Жилая площадь:14.1 м²
  • Площадь кухни:5 м²
  • Этаж:5

Мы используем файлы cookie, чтобы обеспечить вам наилучший доступ к нашему веб-сайту

Скопировано